5 homes found in Wylie
For Sale
Gallery
Description
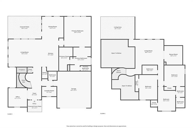
Proudly situated on a corner lot, this one-owner Nov 2021 build offers architectural originality from the moment you enter. The grand sweeping staircase and secluded study set a sophisticated tone. The heart of the home is an open two-story family room, where oversized windows draw in natural light from every angle, highlighting the tiled fireplace and seamless flow into the gourmet kitchen. Equipped with granite countertops, stainless appliances, and walk-in pantry, the culinary space is designed for grand-scale hosting. Retreat to the primary suite to find a spa-inspired bath with dual vanities and a sprawling walk-in closet. Upstairs, the entertainment wing features a game room overlooking the living area, a private media room for movie nights, and a large exclusive covered balcony. With three additional bedrooms and 2 spacious covered outdoor spaces, this home offers a lifestyle of uncompromised comfort. Save thousands every year with NO MUD or PID taxes! Combined with a low HOA fee that grants full access to all community amenities, this is truly the best value in the area. Zoned to the prestigious Wylie ISD, a top-rated and award-winning district known for academic and athletic excellence. Purchase with confidence knowing this home is still protected by a 10-year transferable builder’s foundation warranty. Buyer and Buyer's agent to verify all data.
Property details
Residential
List Price $569,800
Reduced $15200
$192 per SQFT
$600 Annually HOA Fee
2,969 sqft
4 bedrooms
4 bathrooms
2 garages
Built in 2021
Two stories
0.19 acres
                                               
Additional details
School District: Wylie ISD
Elementary: Wally Watkins
Middle or Junior School:
Junior High School: Wylie East
High School:
MLS Number: 21199741
Subdivision: Bozman Farm Estates Ph 7
Heating:
Cooling:
Flooring:
                                                                                           
                                       
                                       
Direction
To reach 1612 Anacua Ln in Wylie from the President George Bush Turnpike, you will head north on the turnpike, continuing as it curves eastward around the Richardson and Plano areas. You will remain on the President George Bush Turnpike North for the majority of the trip until you reach the exit for TX-78 North/Lavon Drive toward Wylie. After exiting, merge onto TX-78 North and follow it for several miles through the center of Wylie. Turn right onto Birmingham Street, then make a left onto Anacua Lane, following the road until you arrive at your destination on the right. This route covers approximately 35 miles and typically takes about 40 minutes, depending on traffic.
Listed by Citiwide Properties Corp. - Vy Tran
The database information herein is provided from and copyrighted by the North Texas Real Estate Information Systems, Inc. NTREIS data may not be reproduced or redistributed and is only for people viewing this site. All information provided is deemed reliable but is not guaranteed and should be independently verified. The advertisements herein are merely indications to bid and are not offers to sell which may be accepted. All properties are subject to prior sale or withdrawal. All rights are reserved by copyright. Copyright © NTREIS 2026. All Rights Reserved.
Eugenia Grajales
945-400-7492
800-424-5088
TREC # 660384
Enter code: