address = System.Web.UI.WebControls.HyperLink 100% Commission Real Estate - 100% Commission in Texas
152 homes found in McKinney
For Sale
Gallery
Description
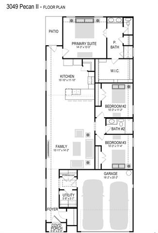
MLS# 21001035 - Built by Trophy Signature Homes - Ready Now! ~ Just as the majestic pecan tree is long-lived, the Pecan II floor plan promises to stand the test time, providing happy memories for years to come. The three-bedroom design is artful with a large living area where you can relax after work or build the ultimate sandwich in the gourmet kitchen. The bread was freshly baked in the oven this morning. There is just enough time before bed to work on your Downward Dog in the yoga room you created in one of the bedrooms. Feeling stress-free, It's time to hop in the walk-in shower before curling up in the sitting area of your stunning primary suite with your favorite book!
Property details
Residential
List Price $289,990
Reduced $12000
$181 per SQFT
$600 Annually HOA Fee
1,602 sqft
3 bedrooms
2 bathrooms
2 garages
Built in 2025
One stories
0.11 acres
                                               
Additional details
School District: Princeton ISD
Elementary: Green
Middle or Junior School: Southard
Junior High School: Lovelady
High School:
MLS Number: 21001035
Subdivision: Southridge
Heating: Central
Cooling: Ceiling Fan(s),Central Air
Flooring: Carpet,Laminate,Luxury Vinyl Plank
                                                                                           
                                       
                                       
Follow Highway 75 North to N Central Expy N in McKinney. Take exit 41 toward 380 and take a right. Turn left onto New Hope Rd W and take a right onto Co Rd 408. Take a left onto FM75 and another left onto Pheasant Trl. Turn left at the first cross street onto High Valley Dr and the Sales Office will
Listed by HomesUSA.com
The database information herein is provided from and copyrighted by the North Texas Real Estate Information Systems, Inc. NTREIS data may not be reproduced or redistributed and is only for people viewing this site. All information provided is deemed reliable but is not guaranteed and should be independently verified. The advertisements herein are merely indications to bid and are not offers to sell which may be accepted. All properties are subject to prior sale or withdrawal. All rights are reserved by copyright. Copyright © NTREIS 2025. All Rights Reserved.
Silandia Stewart
310-707-7917
800-424-5088
TREC # 819741
Enter code: