1 homes found in Rule
Commercial Sale
Gallery
Description
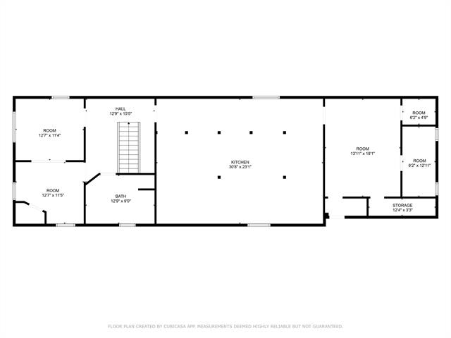
Located at the intersection of US Hwy 380 & Hwy 6, this property offers unbeatable visibility and versatility in a prime commercial location. The downstairs space—approximately 2,000 sq. ft.—is fully equipped and ready to operate as a restaurant, featuring a welcoming dining area up front and a commercial kitchen in the back with equipment included. With its open layout, this level could also be transformed to suit a variety of business ventures. Upstairs, you’ll find beautifully renovated living quarters with modern updates throughout. Highlights include fresh paint, newer flooring, an updated bathroom, and a stylish open-concept kitchen complete with refrigerator, stove, and microwave. The kitchen flows seamlessly into a spacious dining and living area, perfect for both comfort and entertaining. With 3 bedrooms and ample storage, this space is ideal for on-site living or as a rental opportunity. Whether you’re looking to launch your next business, invest in income-producing property, or combine work and home in one location, this property is truly move-in ready and full of potential.
Corner Lot
Property details
MLS Number: 21055200
Status: Active
Property Type: Commercial Sale
Subtype: Business
List Price: $149,900
Original List Price: $149,900
Land SQFT: 2,875
Acres: 0.0660
List Price/SQFT: $0.00
List Price/Acres $: $2,271,212
Will Subdivided: No
MUD District: 0
                                               
Additional details
School District:
Elementary
Middle or Junior School:
Junior High School:
High School:
                                                                                           
                                       
                                       
Direction
GPS Friendly. HCR sign will be present.
Listed by HCR Realty LLC
The database information herein is provided from and copyrighted by the North Texas Real Estate Information Systems, Inc. NTREIS data may not be reproduced or redistributed and is only for people viewing this site. All information provided is deemed reliable but is not guaranteed and should be independently verified. The advertisements herein are merely indications to bid and are not offers to sell which may be accepted. All properties are subject to prior sale or withdrawal. All rights are reserved by copyright. Copyright © NTREIS 2026. All Rights Reserved.
Rosemary Edwards
214-337-7084
800-424-5088
TREC # 563048
Enter code: